[증축] 행복마을 증축(추인) 인허가
2025-11-21




■ 기본정보
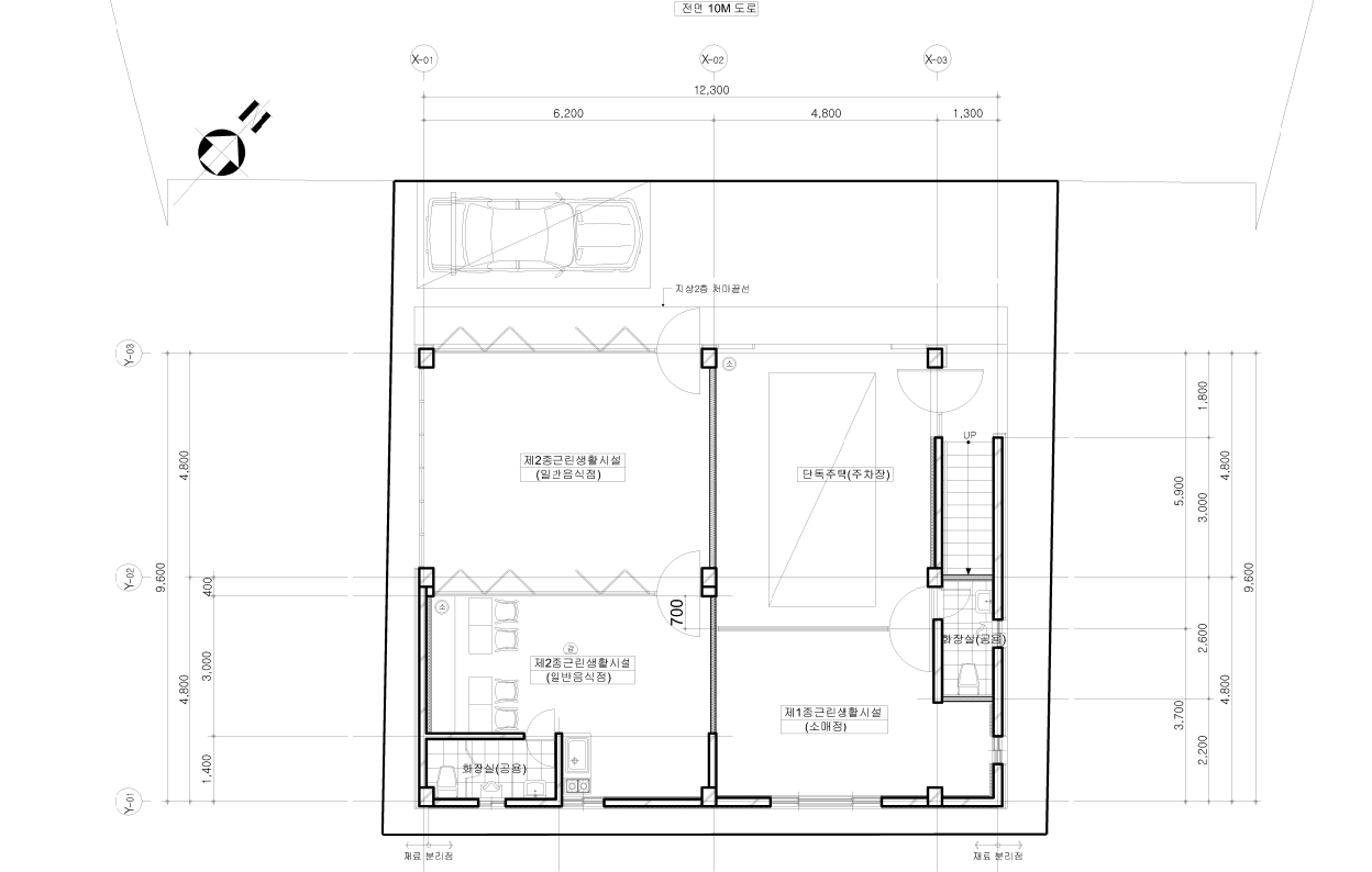
공사명: 행복마을 증축(추인) 인허가
대지위치: 부산광역시 강서구 명지동
지역·지구:
제1종 일반주거지역
제1종 지구단위계획구역
역사문화환경보존지역
■ 대지 현황
대지면적: 198.9㎡
도로현황: 10M 도로
■ 건축 규모
구분 | 변경 전 | 변경 후 |
|---|---|---|
건축면적 | 118.08㎡ | 변경 없음 |
건폐율 | 60.00% | 59.37% |
연면적(용적률 산정 연면적) | 236.16㎡ (229.90㎡) | 동일 |
용적률 | 180% | 115.59% |
층수 | 지상 2층 | 동일 |
구조 | 철근콘크리트 | 동일 |
■ 주차대수 산정
부산 주차장 기준 적용:
단독주택: 118.08㎡ → 1대
근린생활시설: 111.84㎡ / 134㎡ = 0.83 → 1대
총 합: 1.83대 → 2대 확보
(기존도 동일하게 2대 산정)
■ 조경 / 공개공지 / 기타
조경:
녹색건축법 시행령 제42조 → 대상 아님
공개공지:
조적조 적용되어 해당 없음
에너지절약계획서:
연면적 500㎡ 미만 → 제출 대상 아님
소방서장 동의:
연면적 400㎡ 미만 → 해당 없음
■ 설비 개요
전기설비: 220V, 60Hz
하수처리: 하수종말처리장 연결
28.32㎡ × 15L = 0.424 ton 증
기계설비: 냉난방설비 및 실외기 포함
블로그 글
첫 댓글을 남겨보세요.