[공모] 교육청 설계공모
2025-10-04
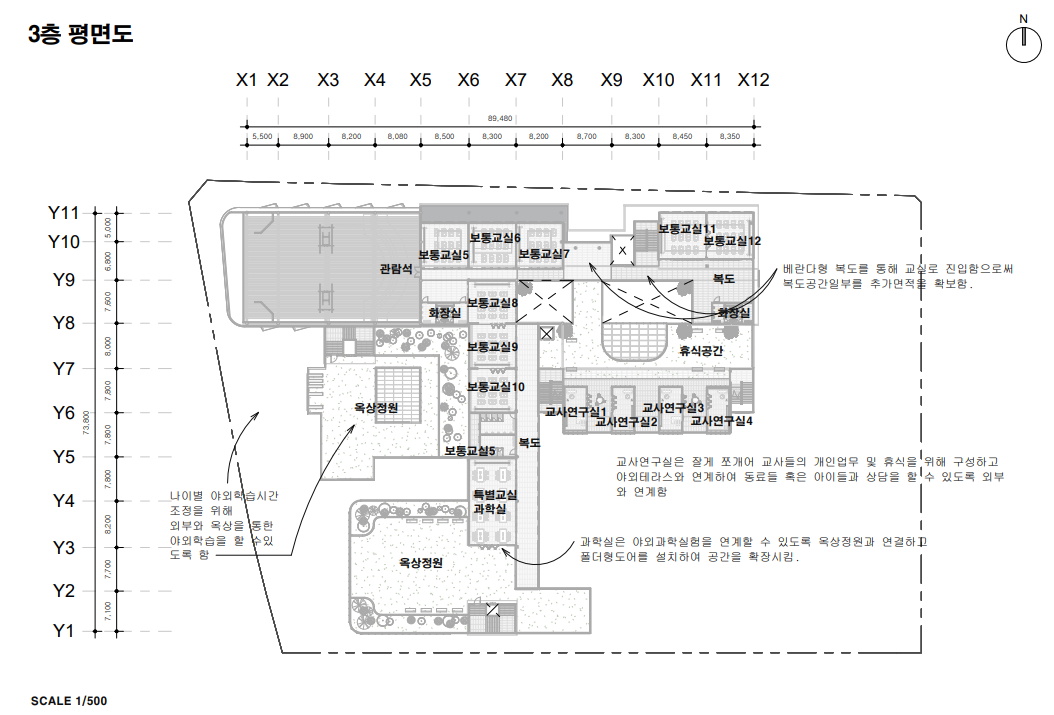
올초에 참여했던 설계공모 작품을 올립니다.
계속적으로 공모에 참여해야 되는데 시간적 여유가 없는게 아쉽네요. 올해도 얼마 남지 않았는데 한작품이라도 더 출품할 수 있도록 시간을 내도록 해봐야겠습니다.
대지면적 : 9,989.83㎡ (3,027.22평)
건축면적 : 4,671.73㎡ (46.76%)
바닥면적(연면적) : 7245.28㎡ (72.53%)



레빗 버전 업데이트되서 내부투시도를 새로 뽑으니 재질이 누락되어 조금 다르게 나왔습니다.







블로그 글
첫 댓글을 남겨보세요.